Living Haus: Aktionshaus Sunshine 165 V3

21.11.2024 | Fotostrecke | Zurück zum Artikel
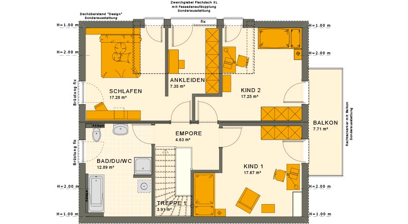
Living Haus Aktionshaus Sunshine 165 V3 Grundriss Obergeschoss

Aktionshaus Sunshine 165 V3 Grundriss Obergeschoss

Im Erdgeschoss bietet der Wohn- und Essbereich mit angrenzender Küche viel Platz zum Kochen, gemeinsam Essen, Feste feiern und auch mal die Beine hochlegen. Das zusätzliche Zimmer kann ganz nach Bedarf als Hobbyraum, Bibliothek oder Arbeits- und Gästezimmer genutzt werden.
Sichern Sie sich jetzt Ihr SUNSHINE 165 als „limitiertes Aktionsangebot”!  – Mit SUNSHINE erhalten Sie Ihr Traumhaus zum Traumpreis.